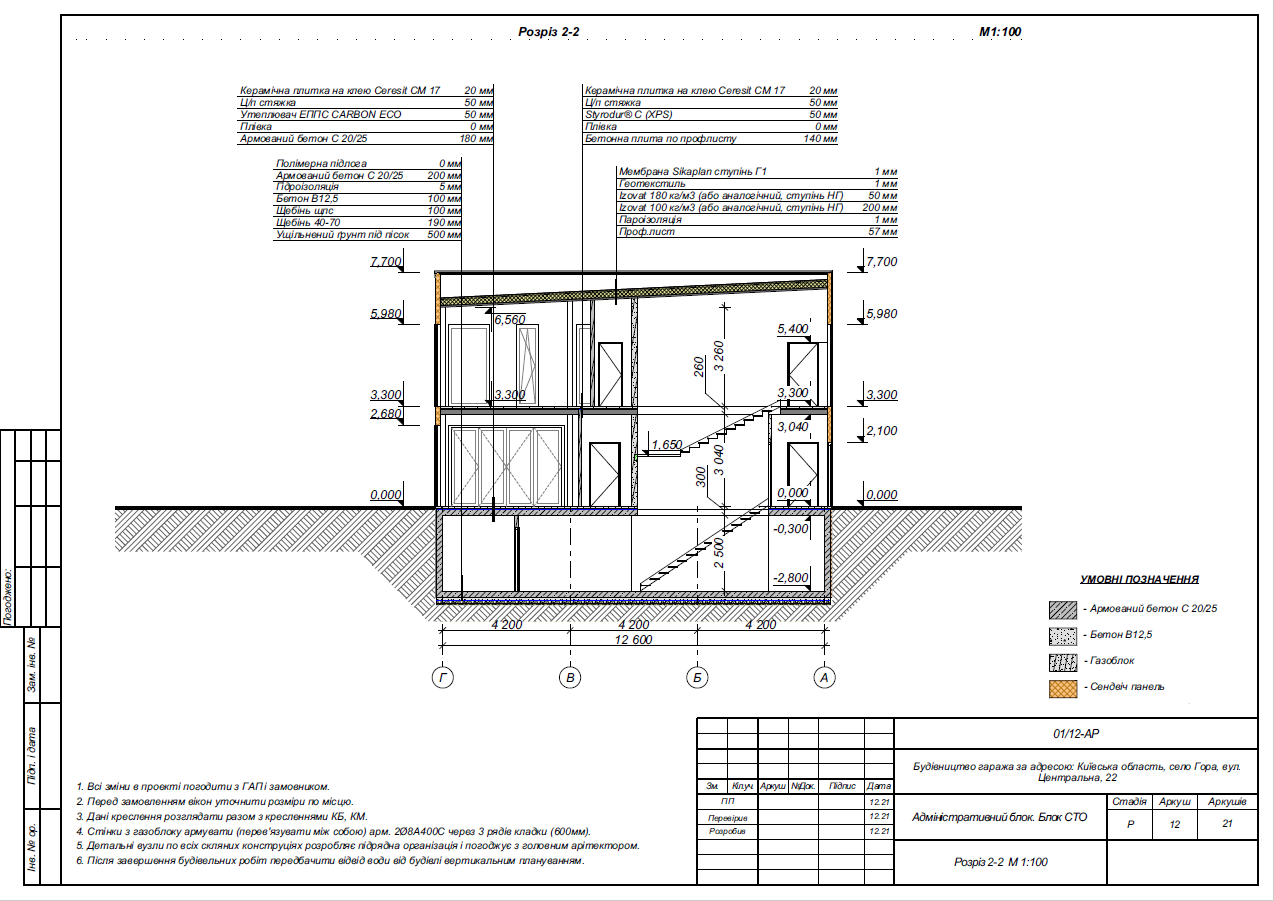
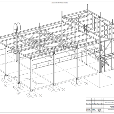
Станція технічного обслуговування для автомобілів

СТО в с. Гора Київської області

Генеральне проєктування. Архітектура, конструктив, інженерні мережі

    Залиште заявку для першої консультації

    Ваш Ім'я:

    Ваш телефон: